燃油燃气锅炉系列
余热锅炉系列
生物质锅炉系列
燃煤锅炉系列
高压电极式锅炉系列
油田注气锅炉系列
节能及低氮改造工程
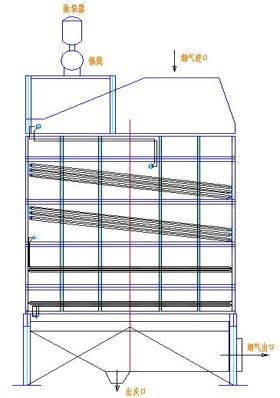
烧结机余热锅炉技术特点:
采用双通道进气技术:根据烧结环冷机余热烟气特点,不同温度烟气分两个通道进入锅炉,实现烟气的梯级利用,提高烟气利用率。
采用双压锅炉技术:余热锅炉采用两种不同压力、温度的蒸汽参数,锅炉自带除氧装置,实现能量梯级回收,提高能量回收利用率。
采用全自然循环余热锅炉技术:余热锅炉采用全自然循环蒸发系统,无需另加循环泵,提高综合利用率,减少中间设备和故障点。

采用纯低温烟气无补燃余热回收技术:烧结环冷机余热烟气为250~450℃温度范围的纯低温烟气,余热锅炉无需进行补燃,实现纯低温余热回收。
适应环冷机余热烟气无规律变化的工况要求,启停快捷。
受热面全部采用管箱结构,保证质量和方便安装,缩短安装周期。
受热面全部采用螺旋鳍片管,适应环冷机余热烟气温度低、流量大的特点。
采用全疏水结构,锅炉疏排水方便、彻底。
